نشان دیوار

وب‌اپلیکیشن یا PWA دیوار سرویسی است که نصب آن، استفاده از دیوار را بدون نیاز به دانلود اپلیکیشن و به‌روز‌رسانی و تنها با کلیک روی آیکون آن فراهم می‌کند. در نسخهٔ وب‌اپلیکیشن نیازی به دانلود و به‌روزرسانی نیست و کاربران iOS و اندروید با دسترسی‌ به آیکون اپلیکیشن در کنار سایر اپ‌های موبایل خود می‌توانند از آن استفاده کنند.


۱. در نوار پایین روی دکمهٔ share بزنید.

۲. در منوی باز شده، گزینهٔ Add to home screen را انتخاب کنید.

۳. در قسمت بالا روی دکمهٔ Add بزنید.

نشان دیوار


بیشترین جستجوهای دیوار
خودروی سواریفروش آپارتماناجاره آپارتمانموبایلصندلی و نیمکتحیواناتوسایل شخصیخدماتاستخدامتلویزیون
چت و تماس
  1. املاک
  2. پروژه‌های ساخت‌وساز
  3. پیش‌فروش املاک
  4. پیش فروش یک واحد از مجتمع چهار واحدی

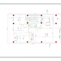
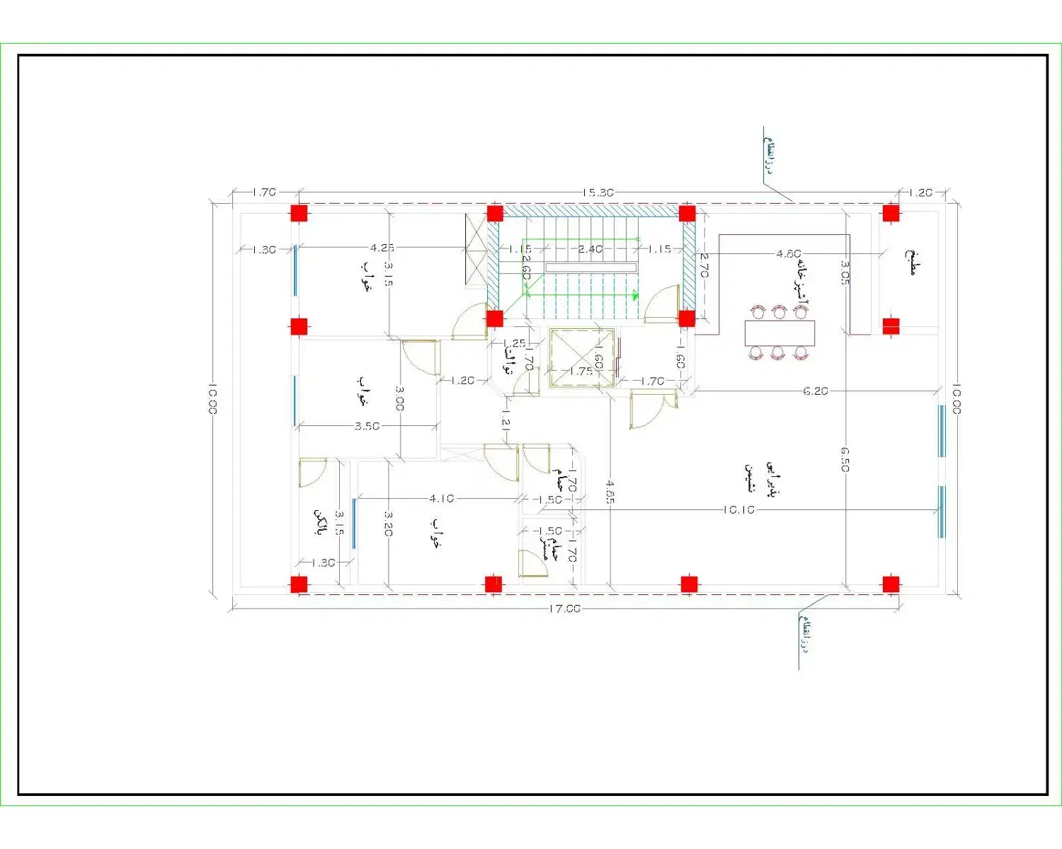
پیش فروش یک واحد از مجتمع چهار واحدی

۲۳ ساعت پیش در زاهدان، خ خوارزمی ۹

    زنگ خطرهای قبل از معامله


    کمترین متراژتحویل
    ۱۴۵اسفند ۱۴۰۴

    تصویر‌ها برای همین ملک است؟

    بله


    نوع واحد‌ها

    مسکونی


    سازنده

    صادقی


    پیشرفت فیزیکی کل پروژه

    ۵۰ درصد


    توضیحات

    مجتمع کم تراکم چهار واحدی در مرکز زیباشهر خوارزمی 9 هر طبقه یک واحد هر واحد 145متر مفید سه خواب و هر سه خواب نورگیر یک خواب مستر پارکینگ و انباری در همکف در مرحله تاسیسات تحویل اسفند 1404 شرایط پرداخت منعطف منطقه ارام کوچه اسفالت

    تصویر 1 از 3
    پیش فروش یک واحد از مجتمع چهار واحدی|پیش‌فروش املاک|زاهدان, |دیوار
    پیش فروش یک واحد از مجتمع چهار واحدی|پیش‌فروش املاک|زاهدان, |دیوار
    پیش فروش یک واحد از مجتمع چهار واحدی|پیش‌فروش املاک|زاهدان, |دیوار
    پیش فروش یک واحد از مجتمع چهار واحدی|پیش‌فروش املاک|زاهدان, |دیوار
    پیش فروش یک واحد از مجتمع چهار واحدی|پیش‌فروش املاک|زاهدان, |دیوار
    پیش فروش یک واحد از مجتمع چهار واحدی|پیش‌فروش املاک|زاهدان, |دیوار

    یادداشت تنها برای شما قابل دیدن است و پس از حذف آگهی، پاک خواهد شد.

    موقعیت مکانی

    گزارش آگهی


    دربارهٔ دیوار
    دریافت برنامه
    اتاق خبر
    دیوار حرفه‌ای

    گزارش آسیب‌پذیری
    دیواری شو
    پشتیبانی و قوانین